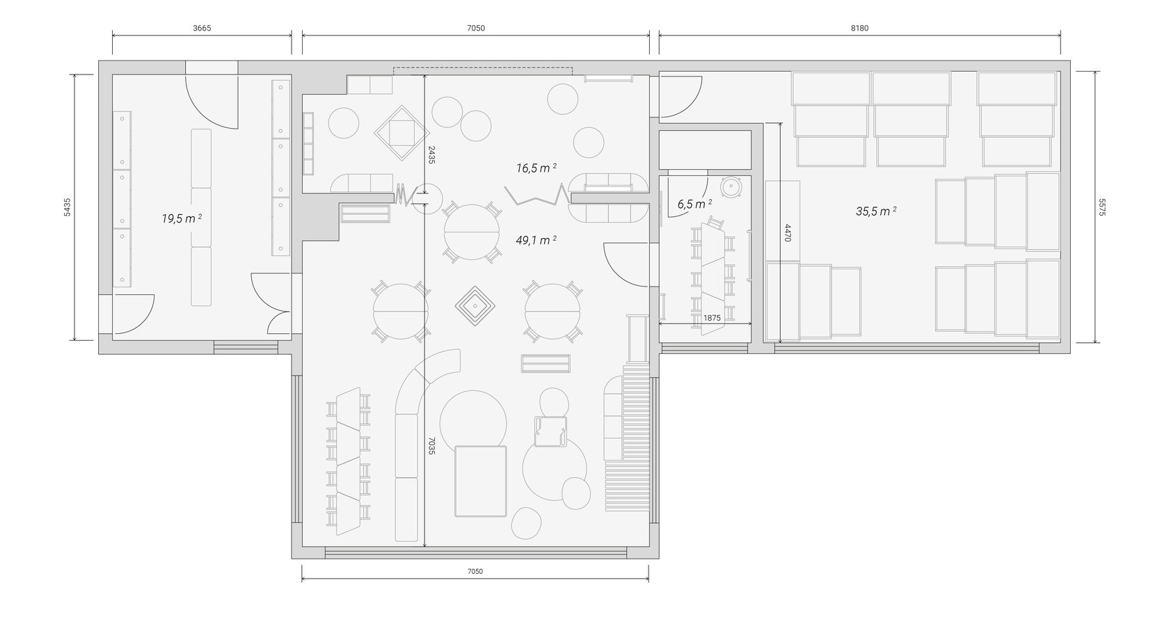
Задачей проекта является проектирование и разработка функционального наполнения нескольких помещений: раздевальной комнаты, основного помещения группы и спальни.

Количество детей в группе - 24 человека, возраст - 4-5 лет.
Основной акцент на создании игрового и образовательного пространства группы на базе тематических центров:

- центр игры
- центр творчества
- центр конструирования
- центр образования (развития речи, математики).

С технической точки зрения проект предполагает расстановку мебели и тематического оборудования для создания единой предметно-пространственной среды.
2 - центр образования

Пространство, служащее для занятия педагога с детьми по развитию речи или, например, по изучению азов математики.

Оборудование размещенное здесь это, прежде всего, столы и стулья. Для хранения дидактического материала используются деревянные контейнеры в круговых и прямых стеллажах, форма которых хорошо подходит для зонирования.
1 - центр игры

Центр включает в себя несколько игровых столов, предполагающих коллективную игру с крупными и мелкими деталями и сыпучими материалами.

Помимо мебели для хранения и игры пространство предполагает размещение мягких поверхностей - ковров и мешков для сиденья.
3 - центр иccледований

Расположенный в глубине помещения центр объединяет столы, стулья и стеллажи для открытого хранения с тематическим игровым материалом. Под руководством воспитателя пространство должно помочь выполнить первые опыты воспитанникам.
4 – центр конструирования / медиапространство

Проект помещения предполагает возможность разделения основной площади и зоны конструирования сдвижной перегородкой.

Такая идея возникла из-за наличия в помещении удобной ниши, которую можно использовать под телевизор или проектор. В таком случае перегородка позволяет значительно затемнить помещение, что хорошо для показа цифрового изображения.

Наполнение зоны это настенные и напольные конструкции адаптированные для лего, а также системы хранения комплектов.
1 - centre du jeu

Le centre se compose de plusieurs tables ludiques proposant le jeu collectif avec des détails de trousse ou avec du sable.

Sauf le meuble dure la zone ont les trucs doux : les poufs et les tapisses.
2 - centre éducatif

L'espace qui sert à l'interaction de l'enseignant avec des enfants : par exemple la leçon de maths ou le développement d'articulation.

L'équipement d'ici c'est tout d'abord les chaises et les tables. Pour garder le matériau didactique il y a les boîtes du bois et les étagères droit et rondes, dont la forme bien convient au zonage.
RAL 5005
RAL 5009
RAL 9016
RAL 1023
RAL 6025
стенные панели из фанеры
цветовое решение

Для помещений группы было решено использовать глубокие оттенки простых цветов : это прежде всего оттенки синего и теплый зеленый цвет.

Главное помещение группы окрашено в светлый серый цвет, что хорошо сочетается с мебелью, имеющей яркие детали.

В качестве акцентов применяются участки окрашенные в яркий желтый цвет, также в творческой зоне применяются деревянные панели.
В зоне конструирования вместо окрашивания всей стены предложен примитивный геометрический узор.
la solution coloristique

Pour les pièces du groupe on a décidé d'utiliser les couleurs simples mais intenses, c'est tout d'abord les nuances de couleurs bleus et vertes.

La chambre principale est couverte de la couleur gris clair ce qui donne la bonne combinaison avec des meubles qui à son tour ont les détails de couleurs vivantes.

La couleur jaune et les panneaux contreplaqués sont utilisés en tant que l'accent pour quelques murs.
La zone où il se trouve le centre de la construction a le pattern primitif au lieu de la couverture totale de couleur blue.
La tâche principale de ce projet est l'élaboration d'un équipement complexe de plusieurs pièces du groupe du jardin d'enfants : le garderobe, la chambre à couchettes et la chambre générale.

La quantité des enfants prévisionnelle est 24, l'âge est 4-5 ans.
L'accent essentiel est la planification de l'espace du jeu et d'éducation sur la base les centres thématiques :

- centre du jeu
- centre créatif
- centre de la construction
- centre éducatif (des maths ou le développement d'articulation).

Au niveau technique ce projet consiste en diffusion du meuble et l'équipement ludique pour établir l'environnement objet spatial.
4 – centre éducatif / l'espace médias

L'idée principale de la pièce suppose est la division de l'espace général sur deux parties, où la zone au fond est celle de la construction, qu'il est possible grâce à à la cloison transformée.

La raison de cette conception a apparu a cause d'une niche où potentiellement on peut poser un TV ou le vidéoprojecteur. Dans ce cas-là c'est permis d'obtenir l'image nette.

Le contenu de cette zone ce sont les constructions au sol et aux murs adaptés au jeu avec lego et aussi les étagères pour stocker les trousses.
Оборудование для зоны творчества помимо сидячих мест дополняется полкой для хранения красок и принадлежностей, вешалкой для рабочей одежды и подвесом для рисунков.
L'équipement pour l'atelier sauf les sièges s'ajoute par les étagères pour le stockage des peintures, un porte-robe et par un truc pour l'accrochage des dessins.
Площадь спальни довольно скромная, поэтому чтобы уместить 24 человека используются кровати 3-х и 4-х ярусов с отсеками для хранения постельного белья.
L'espace de la chambre à couchettes n'est pas si grande, donc on planifie ici installer les lits à 3 et 4 étages qui ont les boîtes pour garder des draps.
В гардеробной комнате установлены многосекционные шкафчики для хранения верхней одежды и скамьи для переодевания, а стена с краской для рисования мелом - хорошая возможность донести важные информацию родителям.
Dans le garderobe il y a les armoires à plusieurs sections, dont la quantité corresponde au nombre d'élèves. Ici il y a le mur noir qui permet de laisser des messages manuscrites adresses aux parents.
3 - centre de recherche

Il est installé au fond de la pièce générale, le centre réunit les chaises et les étagères ouvertes qui sont remplies du matériau didactique. Sous la direction de l'enseignant l'espace doit être pratique pour les premières expériences scientifiques.
Rosigrushka / 2021
Made on
Tilda